Doppelhaushälfte - Exclusivhaus
DIN-Wohnfläche 169 m²

Gartenansicht

Giebelansicht rechts

Eingansansicht

Giebelansicht links
Beschreibung
Dieses großzügige, 2-geschossige, postmoderne Doppelhaus bietet Ihrer Familie reichlich Raum bei einer Hausgröße von 7,00 m x 11,00 m, und mit 169,00 m² DIN-Wfl.
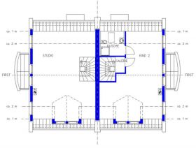
Bei dieser Bauart sind die Giebelwände über die Dachebene gezogen und werden mit Titanzink verblecht, einschl. der Doppelhauszwischenwand. Der Spitzboden/Studio ist bei diesem Haustyp bereits ausgebaut, auf Wunsch kann zusätzlich eine Dusche und eine Spielebene/Galerie, wie auf der rechten Grundrissseite dargestellt, eingebaut werden.
Die großzügige Giebelverglasung bringt viel Licht in Ihr neues Zuhause. Die Grundrisse können selbstverständlich frei gestaltet und Ihren Wünschen angepasst werden. Als weitere Variante kann das Dach des Esserkers als Balkon genutzt werden und wird dann als begehbares Flachdach ausgeführt. Der Zugang erfolgt vom Kinnderzimmer oder vom Schlafzimmer.
Wohn- und Nutzfläche im Überblick
| Nutzfläche Kellergeschoss | 65,64 m² |
| Wohnfläche Erdgeschoss | 68,14 m² |
| Wohnfläche Obergeschoss | 58,16 m² |
| Wohnfläche Dachgeschoss | 47,88 m² |
| Gesamt Wohn- und Nutzfläche | 239,82 m² |
| abzüglich 3 % Putz | |
| Wohnfläche Erdgeschoss und Obrgeschoss | 174,18 |
| abzüglich 3 % Putz | |
| Wohnfläche EG / OG netto | 168,95 |
Details zur Wohn- und Nutzfläche
| Nutzfläche Kellergeschoss | ||||||||||||||
|
||||||||||||||
| Wohnfläche Erdgeschoss | ||||||||||||||
|
||||||||||||||
| Wohnfläche Obergeschoss | ||||||||||||||
|
||||||||||||||
| Wohnfläche Dachgeschoss | ||||||||||||||
|
||||||||||||||